Adosado en Gata de Gorgos
Ref. GT-6 (Promoción: SORTS I - Gata de Gorgos)Precio: 269.000 €
Información del inmueble
Precio:
269.000 € (2.641,14 € m²)
Operación:
Compra / Venta
Tipo:
Adosado
Población:
Gata de Gorgos
Área:
Alicante
Provincia:
Alicante
Situación:
Pueblo
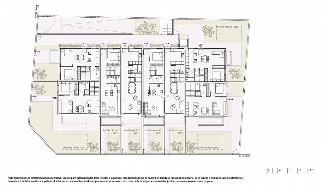
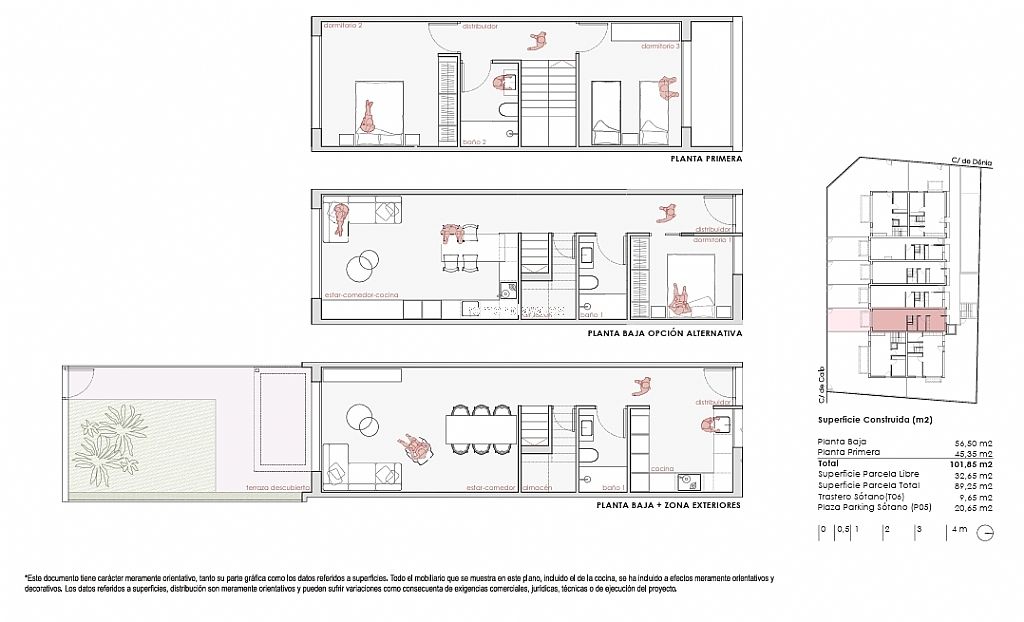
Superficie construida:
101,85 m²
Planta:
2 Plantas
Tipo parcela:
Propia
Superficie parcela:
89,25 m²
Jardín:
Si
Habitaciones:
2
Baños:
2
Terrazas:
1
Salón-comedor:
1
Cocina:
1
Dispone de
Aire acondicionado, Electrodomésticos
Descripción
Garaje y trastero no incluido en el precio.
Parcela neta de 32,65
Posibilidad de poner piscina.
Parcela neta de 32,65
Posibilidad de poner piscina.
Certificación eficiencia energética
En trámite























