SORTS I - Gata de Gorgos
Gata de Gorgos (Alicante)Información del inmueble
Ref:
GT-1 (GT-1)
Precio:
389.000 € (3.683,71 € m²)
Zona:
Alicante
Tipo:
Adosado
Población:
Gata de Gorgos
Zona:
Alicante
Provincia:
Alicante
Situación:
Pueblo
Ubicación/Barrio:
Centro
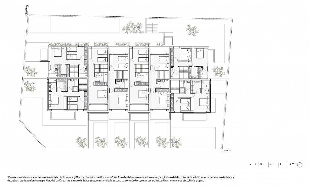
Superficie construida:
105,6 m²
Estado:
A estrenar
Planta:
3 plantas
Tipo parcela:
Propia
Superficie parcela:
186,9 m²
Jardín:
Si
Habitaciones:
3
Baños:
2
Terrazas:
2
Salón-comedor:
1
Cocina:
1
Dispone de
Aire acondicionado, Garaje, Trastero, Electrodomésticos
Descripción
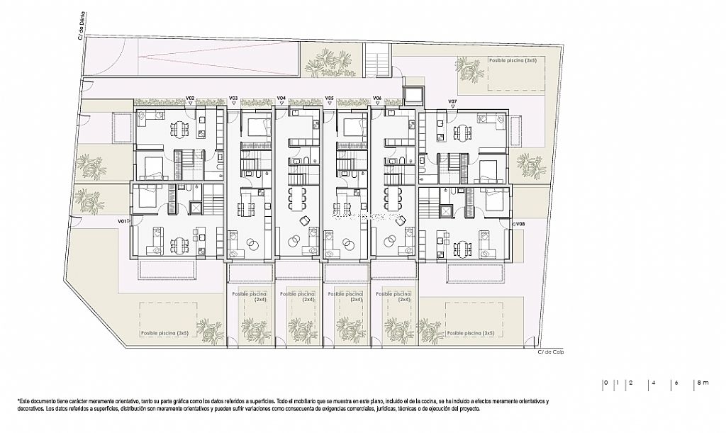
Se accede por el interior de la vivienda al garaje y trastero. E incluido en el precio.
Parcela neta de 130,60
Posibilidad de poner piscina.
Parcela neta de 130,60
Posibilidad de poner piscina.
Certificación eficiencia energética
En trámite























