SORTS I - Gata de Gorgos
Gata de Gorgos (Alicante)Información del inmueble
Ref:
GT-2 (GT-2)
Precio:
339.000 € (3.323,53 € m²)
Zona:
Alicante
Tipo:
Adosado
Población:
Gata de Gorgos
Zona:
Alicante
Provincia:
Alicante
Situación:
Pueblo
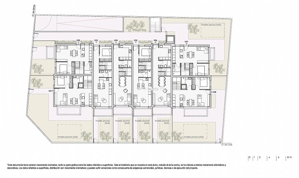
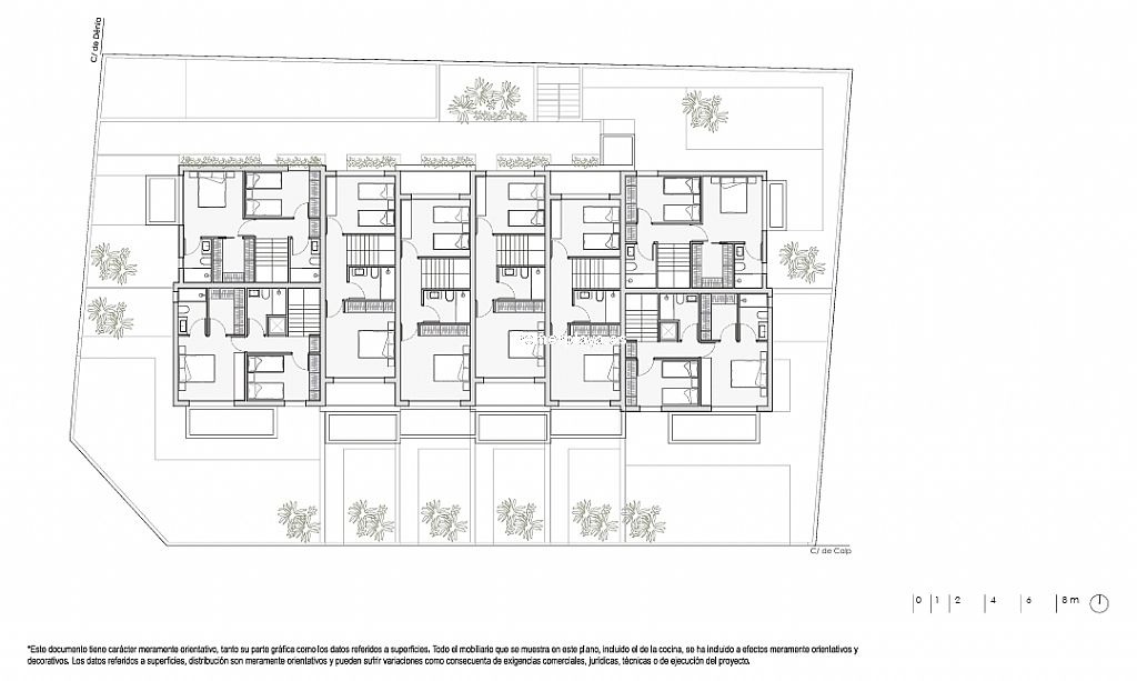
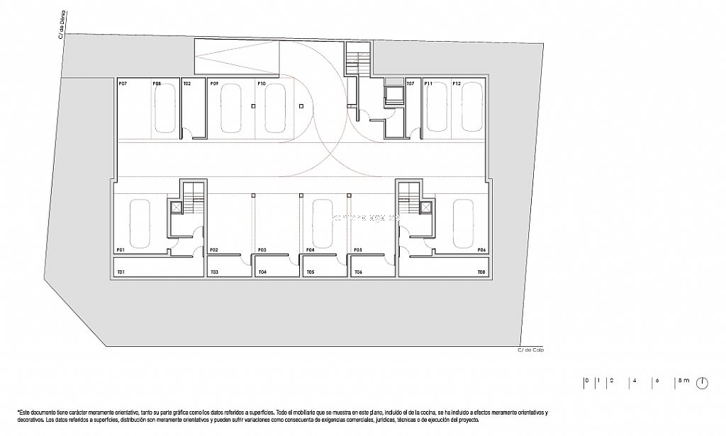
Superficie construida:
102 m²
Planta:
2 Plantas
Tipo parcela:
Propia
Superficie parcela:
91,75 m²
Jardín:
Si
Habitaciones:
3
Baños:
3
Terrazas:
1
Salón-comedor:
1
Cocina:
1
Dispone de
Aire acondicionado, Electrodomésticos
Descripción
Garaje y Trastero no incluido en el precio.
Parcela neta de 37,70
No hay posibilidad de poner piscina.
Parcela neta de 37,70
No hay posibilidad de poner piscina.
Certificación eficiencia energética
En trámite























